
//
//
//
//
//
//
//
//
//
//
软件Tags:
一键楼梯插件是一款专业的CAD图形处理软件,此软件可以帮助用户更好的绘制出CAD的楼梯结构图形,一键楼梯插件可以制作多种阶梯效果,你可以随意轻松的绘制出你想要的效果出来,有需要的用户就快来下载它吧!
一键楼梯插件官方版对于有些小伙伴来说简直就是神器,作为资深小(da)白(xia)的你们为神马还使用神器?听大侠说使用神器可以装bility,让你的设计效率飞上天!恩!如果说高效率设计插件有一个云E库就够了的话,那么你一定不会错过这些神器:一键楼梯、一键踢脚线、 一键地板、一键屋顶、一键窗框、一键书架、一键灯光、一键材质细分……这些一键生成插件在3D学苑都有啊!好了现在就开始享受它(一键楼梯)吧!
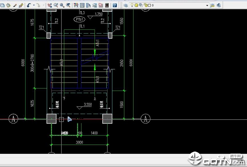
一键楼梯插件可以制作多种阶梯效果,我们常见的楼梯类型包括:直行单跑楼梯、直行多跑楼梯、平行双跑楼梯、折行多跑楼梯、螺旋形楼梯、弧形楼梯。

幻灯片演示
1、将幻灯片集文件夹下所有幻灯片至CAD安装目录下的SUPPORT文件夹下
2、将字体文件夹下所有shx字体拷贝至CAD安装目录下的FONT文件夹下
一键楼梯
1、将字体文件夹下面的字体文件拷贝到CAD安装目录的font文件夹里面
2、使用APPLOAD命令加载插件,输入YL即可运行
3、本程序有两种运行模式,一种是直接框选所有参数直接生成剖面,一种是通过界面交互输入参数生成楼梯剖面
4、将自动生成的楼梯剖面适当修改以后做成块放大两倍即可
5、本程序默认采用AT型,如果想快速修改为其他类型,请用另外一个程序【一键梯板】完成修改
一键楼梯平面体验版
灰色按钮克星是用于插件“一键楼梯平面体验版(命令:LP).VLX”,以解决体验版的限制。
使用方法:1、打开CAD,运行命令LP,出现一键楼梯平面体验版对话框(其按钮均为灰色);
2、运行“灰色按钮克星加强版”,该对话框上勾选下面两项(上面两项不要勾选)
3、鼠标点一键楼梯平面体验版对话框,哈哈,奇迹出现了,按钮亮了。
一键梯板
1、本程序执行命令TB
2、本程序是一键楼梯的配套程序,旨在于快速修改梯板(可完成AT、、CT、DT、ET五种类型的梯板快速生成)
主要是扶手和踏步的参数设置,楼梯的扶手可以开启左右扶手,跟软件自带的参数一样,楼梯的类型分为开放、封闭和落地三种形式。如果勾选左右扶手后,我们可以设置横向扶手的类型,也可自定义,一般我们选择圆形(Round),扶手半径和高度大小可以自由设置。大家注意红色标注的地方都是比较重要的参数,在使用的时候结合cad楼梯尺寸就可以一键生成楼梯了。

AutoCAD Mechanical(附序列号)设计制作 / 1.62G
图时代(图片处理器)下载设计制作 / 85.0M
Photo to FlashBook设计制作 / 10.5M
河马动画Hippo Animator设计制作 / 7.0M
镰刀图片隐写工具设计制作 / 542KB
Blockbench(3D建模工具)设计制作 / 124.4M
理正工程地质勘察软件公路版设计制作 / 228.3M
快速应用程序生成器NeoBook Professional设计制作 / 20M
coreldraw2017注册机设计制作 / 699M
Eagle(图片管理工具)设计制作 / 83.2M
PS中国风墨迹笔触笔刷设计制作 / 13.0M
AutoCAD Mechanical(附序列号)设计制作 / 1.62G
图时代(图片处理器)下载设计制作 / 85.0M
Photo to FlashBook设计制作 / 10.5M
河马动画Hippo Animator设计制作 / 7.0M
镰刀图片隐写工具设计制作 / 542KB
Video Copilot Optical Flares Bundle设计制作 / 57.5M
OrCAD库生成器OrCAD Library Builder设计制作 / 171.3M
Blockbench(3D建模工具)设计制作 / 124.4M
理正工程地质勘察软件公路版设计制作 / 228.3M