
//
//
//
//
//
//
//
//
//
//
软件Tags:
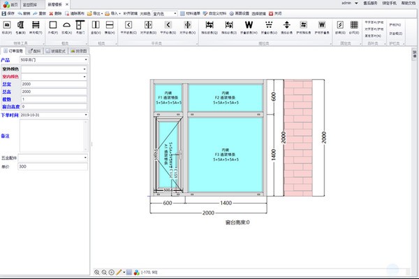
门窗CC设计版是一款卓越的门窗设计软件,它能够帮助用户精心构思出既合理又优雅的门窗图纸。该软件操作简便,效果图真实如临,其所见即所得的特性,亦支持多终端的灵活操作。

新格尔窗线事业部自2017年11月成立以来,专注于窗户行业的深入研究,开创了“窗户新纪元”。针对不同门窗企业对窗户结构的多样需求,开发出一套自动算料优化系统。我们特别研发了快速绘图及快速算料系统,完美解决了以往人工CAD绘制的高成本及人工算料出错率高的问题,为窗户企业提供了一套智能化的解决方案,畅通了经销商与厂家的连接。
团队介绍
我们的团队由同济大学计算机教授、江南大学经济管理教授,以及来自微软和中兴等知名企业的精英组成。首席架构师毕业于上海同济大学计算机科学专业,以优异的成绩获得硕士学位。随后,他加入IBM全球咨询与服务部,为美国及日本的半导体芯片制造业提供服务;2013年与同窗携手,专业研发门窗行业软件解决方案。整个团队主导了门窗CC的架构与开发,研发成员深入客户现场,足迹遍布全国,积累了丰富的行业经验,持续创新,力求为用户打造更易用、更实用、更强大的软件系统。
立刻出图
随时随地绘制图纸,客户现场可以迅速出样图。
所见即所得
支持各类立面窗型的绘图功能。
兼容多种房型及渲染效果。
秒变设计师
即使没有设计师的协助,也能轻松应对。
客户图纸
一键生成
实现一键变色功能(包括型材、玻璃、沥青瓦)。
零基础绘图
零基础操作,便捷设计各种异形图,
一键生成3D效果。
三端互通
支持多平台(电脑、平板、手机)的无缝对接。
数据互通
1 下载完成后,请勿直接在压缩包内运行软件,务必先进行解压;
2 软件同时支持32位与64位运行环境;
3 若软件无法正常打开,请右键选择以管理员模式运行;
